ARQUITECTO: Arata Isozaki
LUGAR: Japón, Nara
FECHA: 1998
El edificio, concebido a modo de contenedor, recupera la simplicidad formal y la escala de los grandes templos de hace 1.200 años.
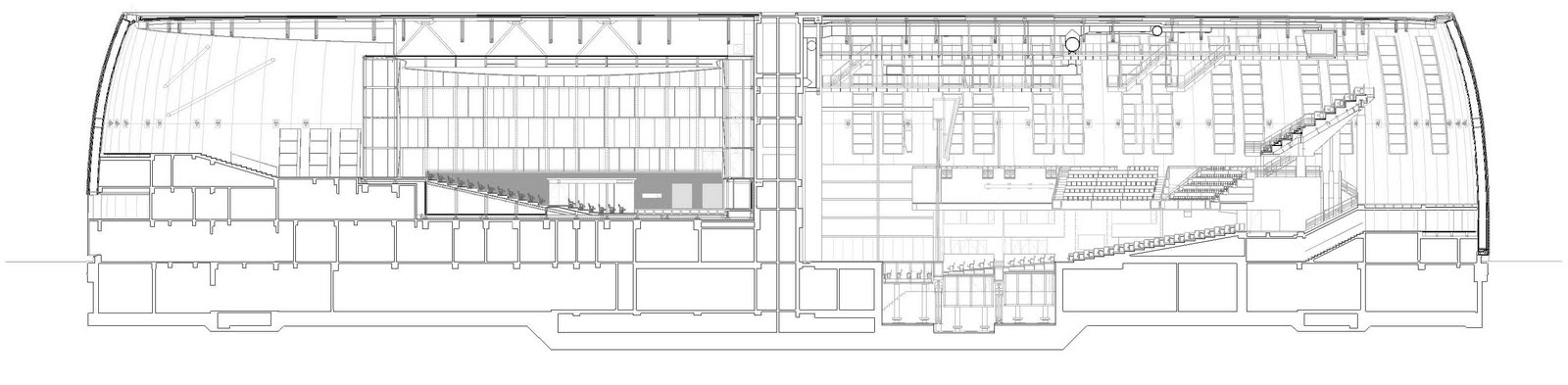
La distribución interior de la construcción, con un total de 22682 m2 y dotada de una estructura de hormigón armado y paneles de hormigón prefabricado, se articula alrededor de las dos salas principales.
El skyline de la ciudad queda definido por los tejados de los templos que, como los de las casas de alrededor, están completamente cubiertos de tejas de color gris oscuro. También los muros exteriores del nuevo edificio están revestidos de tejas que tienen el mismo color que las de los tejados antiguos.
Las dimensiones del edificio han sido definidas en relación a las de la gran sala de Buddha del templo Todai-ji.
La mayor de las salas, con capacidad para 1800 personas y carácter multifuncional mediante un mecanismo absolutamente futurista, está concebida como sala de convenciones. En cuanto a la segunda sala, se trata de una caja de cristal transparente, con un aforo de 500 personas, y está pensada para albergar acontecimientos musicales.
Para facilitar la difusión del sonido, el techo es ligeramente curvo y presenta una superficie tratada como una red con nichos para la iluminación y la absorción del sonido. El espacio situado entre la caja de cristal y la concha externa alberga un recibidor y un bar, desde el que es posible ver el panorama de todo el espacio iluminado con luz natural.
El método constructivo ha permitido colocar la cubierta de un gran espacio sin tener que construir un andamiaje interior. Con dicho sistema las losas de cemento que caracterizan la cubierta han sido realizadas en el suelo y después alzadas, alcanzando en total un peso de 4.600 toneladas.
























































